House Plans
House plans, multifamily plans,garage plans,vacation homes,cabin plans,and more from The Southern Designer, LLC.
View home design CartShopping Cart Check your house plan order shipping statusShipping Status Email Us
Return To House Plans, Garage Plans, Multifamily Plans From The Southern Designer HomeCollections of House Plans, garage plans, multifamily plans.New House PlansMultifamily Home PlansPopular Home PlansGarage PlansDesigner Log InContact The Southern Designer
About Our House Plans Ordering House Plans Blueprints Include Home Design Pricing

Easy House Plan Search
House Plans 1000-1500
House Plans 1501-2000
House Plans 2001-2500
House Plans 2501-3000
House Plans 3001-3500
House Plans 3501-4000
House Plans 4001-4500
House Plans 4501 and up

Search for House Plans By Style
Country House Plans
Traditional House Plans
French House Plans
Acadian House Plans
A-Frame House Plans
Bungalo House Plans
Cape Cod House Plans
Colonial House Plans
Contemporary House Plans
Cottage House Plans
Craftsman House Plans
Early American House Plans
European House Plans
Florida House Plans
Georgian House Plans
Mediterranean Home Designs
Prarie Home Designs
Ranch Home Designs
Spanish Home Plans
Victorian Home Designs




Credit Card Processing

Top Real Estate Sites  



Plan Number:
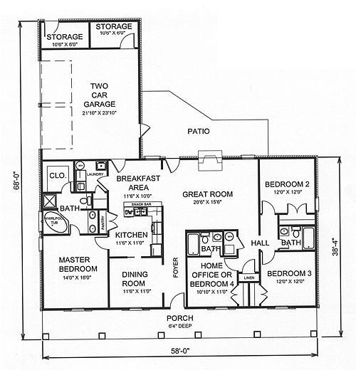
SD-3502-67
Description: Classic Southern with a "Hip" approach This classic exterior is hightlighted with a large front porch, arched transoms and 10 foot ceilings. A smaller "hip" version of our classic best selling 2108. This home offers great style in a nice size home. Four bedrooms on a split layout make is a great home for families. Bedroom 2 and 3 share a bath. Bedroom 4 has a full bath and could be used as a home office. The Great Room has a gas fireplace and a french door leading onto the rear patio The Kitchen is located between the Breakfast and Dining Rooms. A raised snack bar and large pantry make preparing meals easier. Gas front and back cabinets over the snack bar allow light to filter into the kitchen. The Master Bedroom has a glamour bath with dual sinks, whirlpool tub and seperate shower. The 7' x 7' Walk-in Closet gives the owners lots of room for storage.
Bedrooms : 4
Baths : 3
Width : 58'  0"
Depth : 68'  0"
Main Ceiling Height: 10
Roof Pitch: 8 in 12
Secondary Roof Pitch: 10 in 12
Floors : 1
1st Floor : 1856 sq. ft.
Total Living : 1856 sq. ft.
Total Area : 2850 sq. ft.
Garage Bays: 2
Garage Type: Attached
Foundation:
Slab, Crawl Space
Options:
Reproducible / PDF, Mirror Reading Reverse, Modifications
 

Five Sets Eight Sets Additional Sets Reproducibles / PDF
$670.00 $715.00 $35.00 $870.00

 
All content is copyright © 2012 by The Southern Designer, LLC .
ALL SALES FINAL