Plan Number:
 |
SD-1840-67
 |
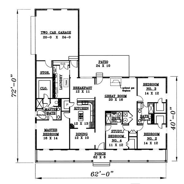
| Description: Great things come in small packages! A smaller version of our award winning 2108. This plan has it all... 3-4 Bedrooms 3 full baths - large rooms, gas fireplace, glass fronted cabinets over snack bar. walk-in closets and pantry. Large front porch and plenty of charm for under 1900 sq.ft. |
| Bedrooms : |
4 |
| Baths : |
3 |
| Width : |
58' 0" |
| Depth : |
68' 0" |
| Main Ceiling Height: |
9 |
| Roof Pitch: |
8 in 12 |
| Secondary Roof Pitch: |
4 in 12 |
| Floors : |
1 |
| 1st Floor :
|
1851 sq. ft. |
| Total Living :
|
1851 sq. ft. |
| Total Area :
|
2850 sq. ft. |
| Garage Bays: |
2 |
| Garage Type: |
Attached |
Foundation: Slab, Crawl Space |
Options: Reproducible / PDF, Right Reading Reverse, Material List, Mirror Reading Reverse, Modifications |
| |

 |
|
|