Plan Number:
 |
SD-9062-162
 |
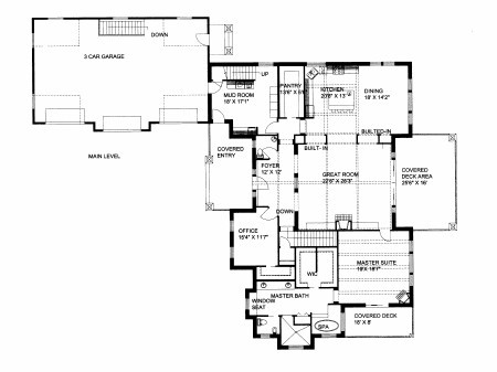
| Description: DOG ROOM, SHOP, GYM, RECREATION ROOM
COVERED PATIO, BONUS ROOM, OFFICE
SPA, MUD ROOM, GREAT ROOM, PANTRY
3 CAR GARAGE, OPEN BEAMS THROUGHOUT THE HOUSE
|
| Bedrooms : |
3 |
| Baths : |
3.5 |
| Width : |
99' 0" |
| Depth : |
87' 6" |
| Main Ceiling Height: |
10 |
| Other Ceiling Height: |
9 |
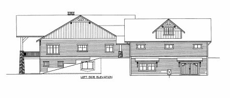
| Roof Pitch: |
10 in 12 |
| Secondary Roof Pitch: |
4 in 12 |
| Floors : |
2 |
| 1st Floor :
|
3135 sq. ft. |
| 2nd Floor :
|
884 sq. ft. |
| Bonus Room: |
1296 sq. ft. |
| Other Room: |
2181 sq. ft. |
| Total Living :
|
5316 sq. ft. |
| Total Area :
|
8838 sq. ft. |
| Garage Bays: |
3 |
| Garage Type: |
Attached |
Foundation: Standard Basement |
Options: Reproducible / PDF, Right Reading Reverse, Mirror Reading Reverse, Modifications |
| |

 |
|
|