Plan Number:
 |
SD-9061-162
 |
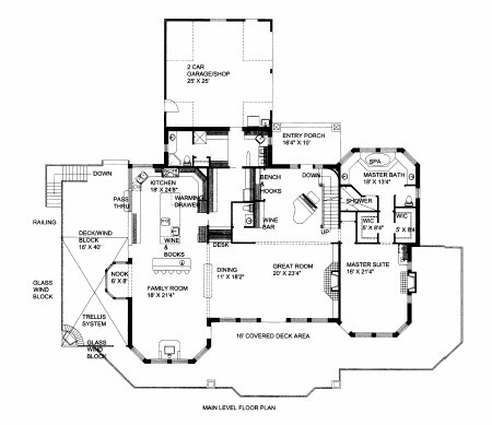
| Description: ENTRY PORCH, GREAT ROOM
2 CAR GARAGE
FAMILY ROOM
RECREATION ROOM, EXERCISE ROOM
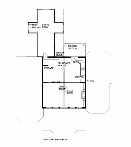
WINE STORAGE, OFFICE , NOOK, BALCONY
|
| Bedrooms : |
4 |
| Baths : |
4.5 |
| Width : |
74' 8" |
| Depth : |
83' 0" |
| Main Ceiling Height: |
9 |
| Other Ceiling Height: |
8 |
| Roof Pitch: |
8 in 12 |
| Secondary Roof Pitch: |
None |
| Floors : |
2 |
| 1st Floor :
|
3202 sq. ft. |
| 2nd Floor :
|
612 sq. ft. |
| Other Room: |
3156 sq. ft. |
| Total Living :
|
6970 sq. ft. |
| Total Area :
|
8207 sq. ft. |
| Garage Bays: |
2 |
| Garage Type: |
Attached |
Foundation: Standard Basement |
Options: Reproducible / PDF, Right Reading Reverse, Mirror Reading Reverse, Modifications |
| |

 |
|
|