Plan Number:
 |
SD-8483-71
 |
| Description: This warm Country Siding home has a large front porch with wood post and is a nice place to relax in the afternoons. The large family room has a cozy fireplace and is opened to the dining area with wood columns. The dining area is opened to the kitchen and has a large bay window. The gourmet kitchen ha a island cabinet, built in hutch and a walk in
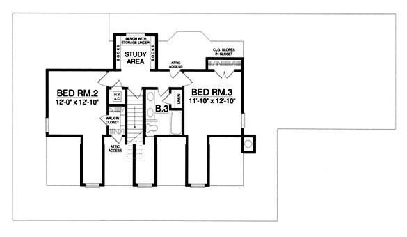
pantry. The study is off of the entry, has media center and could be used for a spare bedroom. The large master suite has a luxurious master bath with his and her vanities, Marble tub, glass shower and two walk in closets upstairs has two additional bedrooms with walk in closets, a study area and share a convenient bath.
|
| Bedrooms : |
3 |
| Baths : |
3 |
| Width : |
78' 11" |
| Depth : |
41' 10" |
| Main Ceiling Height: |
9 |
| Other Ceiling Height: |
8 |
| Roof Pitch: |
8 in 12 |
| Secondary Roof Pitch: |
4 in 12 |
| Floors : |
2 |
| 1st Floor :
|
1573 sq. ft. |
| 2nd Floor :
|
606 sq. ft. |
| Total Living :
|
2179 sq. ft. |
| Total Area :
|
2876 sq. ft. |
| Garage Bays: |
2 |
| Garage Type: |
Attached |
Foundation: Slab, Crawl Space, Standard Basement |
Options: Reproducible / PDF, Right Reading Reverse, Mirror Reading Reverse, Modifications, CAD Files |
| |

 |
|
|