Plan Number:
 |
SD-8214-162
 |
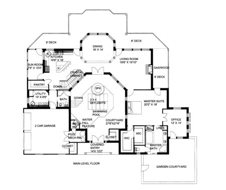
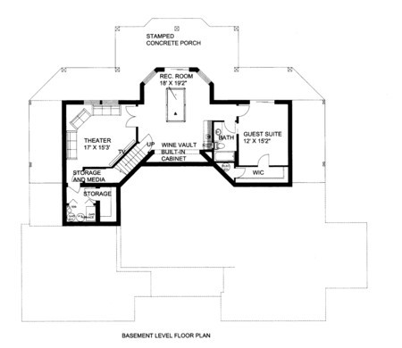
| Description: Insulated concrete forms, recreation room, storage,spa and indoor pool, courtyard and sun room. |
| Bedrooms : |
2 |
| Baths : |
2.5 |
| Width : |
84' 0" |
| Depth : |
62' 0" |
| Main Ceiling Height: |
9 |
| Other Ceiling Height: |
20 |
| Roof Pitch: |
7 in 12 |
| Secondary Roof Pitch: |
None |
| Floors : |
2 |
| 1st Floor :
|
2350 sq. ft. |
| 2nd Floor :
|
1335 sq. ft. |
| Total Living :
|
3685 sq. ft. |
| Total Area :
|
5109 sq. ft. |
| Garage Bays: |
0 |
| Garage Type: |
None |
Foundation: Standard Basement |
Options: Reproducible / PDF, Right Reading Reverse, Mirror Reading Reverse, Color Rendering, Modifications |
| |

 |
|
|