Plan Number:
 |
SD-8185-162
 |
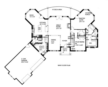
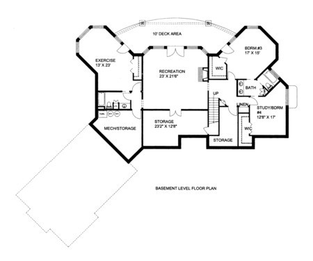
| Description: Insulated concrete forms, recreation room, storage, mech,deck area, fireplace in great room. |
| Bedrooms : |
4 |
| Baths : |
5 |
| Width : |
0' 0" |
| Depth : |
0' 0" |
| Main Ceiling Height: |
9 |
| Roof Pitch: |
7 in 12 |
| Secondary Roof Pitch: |
None |
| Floors : |
2 |
| 1st Floor :
|
2586 sq. ft. |
| 2nd Floor :
|
2586 sq. ft. |
| Total Living :
|
5172 sq. ft. |
| Total Area :
|
6088 sq. ft. |
| Garage Bays: |
3 |
| Garage Type: |
None |
Foundation: Slab |
Options: Reproducible / PDF, Right Reading Reverse, Mirror Reading Reverse, Color Rendering, Modifications |
| |

 |
|
|