Plan Number:
 |
SD-7781-162
 |
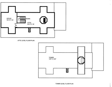
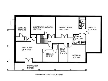
| Description: REC. ROOM, CRAFT/SEWING ROOM
WEIGHT ROOM, LIBRARY
PANTRY
TOWER ROOM
|
| Bedrooms : |
3 |
| Baths : |
2 |
| Width : |
70' 0" |
| Depth : |
38' 0" |
| Main Ceiling Height: |
9 |
| Other Ceiling Height: |
10 |
| Roof Pitch: |
3 in 12 |
| Secondary Roof Pitch: |
None |
| Floors : |
2 |
| 1st Floor :
|
2564 sq. ft. |
| 2nd Floor :
|
1194 sq. ft. |
| Other Room: |
53 sq. ft. |
| Total Living :
|
6373 sq. ft. |
| Total Area :
|
6373 sq. ft. |
| Garage Bays: |
0 |
| Garage Type: |
None |
Foundation: Slab |
Options: Reproducible / PDF, Right Reading Reverse, Mirror Reading Reverse, Color Rendering, Modifications, CAD Files |
| |

 |
|
|