Plan Number:
 |
SD-7779-162
 |
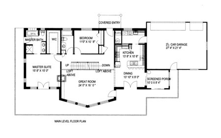
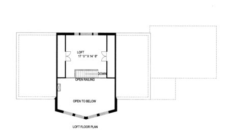
| Description: LOFT, COVERED ENTRY
MASTER ON MAIN FLOOR, WIC
STORAGE, 2 CAR GARAGE, STORAGE
GREAT ROOM
|
| Bedrooms : |
4 |
| Baths : |
3 |
| Width : |
83' 3" |
| Depth : |
39' 6" |
| Main Ceiling Height: |
9 |
| Other Ceiling Height: |
10 |
| Roof Pitch: |
10 in 12 |
| Secondary Roof Pitch: |
None |
| Floors : |
2 |
| 1st Floor :
|
1743 sq. ft. |
| 2nd Floor :
|
330 sq. ft. |
| Other Room: |
913 sq. ft. |
| Total Living :
|
2986 sq. ft. |
| Total Area :
|
3690 sq. ft. |
| Garage Bays: |
2 |
| Garage Type: |
Attached |
Foundation: Slab |
Options: Reproducible / PDF, Right Reading Reverse, Mirror Reading Reverse, Color Rendering, Modifications, CAD Files |
| |

 |
|
|