Plan Number:
 |
SD-7778-162
 |
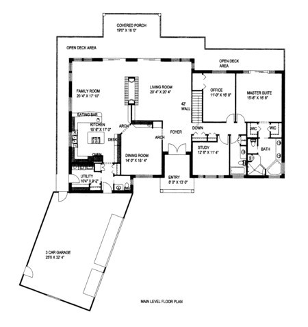
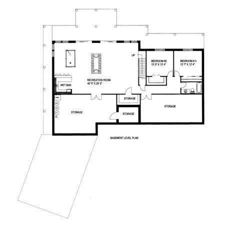
| Description: DECK AREA, FAMILY ROOM
STUDY, RECREATION ROOM
WET BAR
STORAGE
|
| Bedrooms : |
3 |
| Baths : |
3.5 |
| Width : |
92' 0" |
| Depth : |
86' 10" |
| Main Ceiling Height: |
10 |
| Other Ceiling Height: |
9 |
| Roof Pitch: |
3 in 12 |
| Secondary Roof Pitch: |
9 in 12 |
| Floors : |
1 |
| 1st Floor :
|
3028 sq. ft. |
| Other Room: |
3028 sq. ft. |
| Total Living :
|
6056 sq. ft. |
| Total Area :
|
7056 sq. ft. |
| Garage Bays: |
3 |
| Garage Type: |
Attached |
Foundation: Slab |
Options: Reproducible / PDF, Right Reading Reverse, Mirror Reading Reverse, Color Rendering, Modifications, CAD Files |
| |

 |
|
|