Plan Number:
 |
SD-7775-162
 |
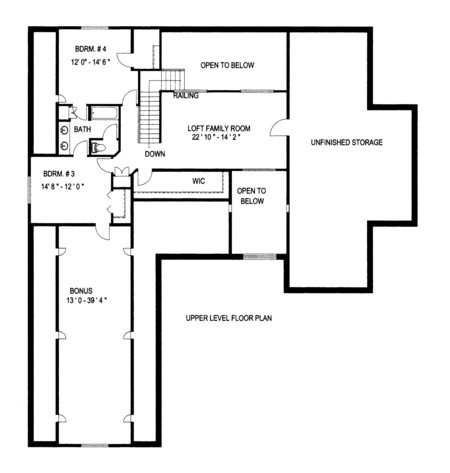
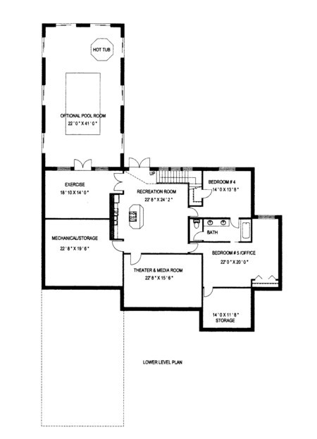
| Description: ICF, HEARTH ROOM, LOFT FAMILY ROOM
GRAND FOYER, COVERED ENTRY, SITTING AREA
EXERCISE ROOM, OPTIONAL POOL ROOM,WALK IN CLOSET
PANTRY, MEDIA/THEATER,STORAGE,REC ROOM
|
| Bedrooms : |
5 |
| Baths : |
3.5 |
| Width : |
70' 0" |
| Depth : |
90' 0" |
| Main Ceiling Height: |
8 |
| Roof Pitch: |
10 in 12 |
| Secondary Roof Pitch: |
None |
| Floors : |
1 |
| 1st Floor :
|
2734 sq. ft. |
| 2nd Floor :
|
1116 sq. ft. |
| Other Room: |
2734 sq. ft. |
| Total Living :
|
6584 sq. ft. |
| Total Area :
|
9131 sq. ft. |
| Garage Bays: |
3 |
| Garage Type: |
Attached |
Foundation: Standard Basement |
Options: Reproducible / PDF, Right Reading Reverse, Mirror Reading Reverse, Color Rendering, Modifications, Handicapped Accesable |
| |

 |
|
|