Plan Number:
 |
SD-7773-162
 |
| Description: INSULATED CONCRETE FORMS
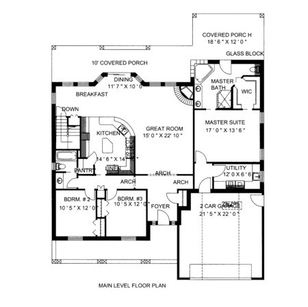
2 CAR GARAGE
COVERED PORCH
BREAKFAST AREA
VAULTED GREAT ROOM
UTILITY ROOM
NOOK
MAIN LEVEL MASTER SUITE
|
| Bedrooms : |
3 |
| Baths : |
3 |
| Width : |
55' 0" |
| Depth : |
57' 0" |
| Main Ceiling Height: |
9 |
| Other Ceiling Height: |
9 |
| Roof Pitch: |
6 in 12 |
| Secondary Roof Pitch: |
3 in 12 |
| Floors : |
1 |
| 1st Floor :
|
2102 sq. ft. |
| 2nd Floor :
|
1074 sq. ft. |
| Total Living :
|
3176 sq. ft. |
| Total Area :
|
3877 sq. ft. |
| Garage Bays: |
2 |
| Garage Type: |
Attached |
Foundation: Slab, Crawl Space |
Options: Reproducible / PDF, Right Reading Reverse, Mirror Reading Reverse, Color Rendering, Modifications, CAD Files |
| |

 |
|
|