Plan Number:
 |
SD-7771-162
 |
| Description: *Insulated Concrete Form
*Fireplace in Great Room
*Family Room
*Master Suite with Private Bath
*2-Car Garage
|
| Bedrooms : |
2 |
| Baths : |
2.5 |
| Width : |
65' 0" |
| Depth : |
65' 4" |
| Main Ceiling Height: |
9 |
| Other Ceiling Height: |
9 |
| Roof Pitch: |
7 in 12 |
| Secondary Roof Pitch: |
None |
| Floors : |
1 |
| 1st Floor :
|
1652 sq. ft. |
| Other Room: |
1652 sq. ft. |
| Total Living :
|
3304 sq. ft. |
| Total Area :
|
3832 sq. ft. |
| Garage Bays: |
2 |
| Garage Type: |
Attached |
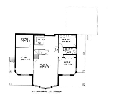
Foundation: Standard Basement |
Options: Reproducible / PDF, Right Reading Reverse, Mirror Reading Reverse, Color Rendering, Modifications, CAD Files |
| |

 |
|
|