Plan Number:
 |
SD-7768-162
 |
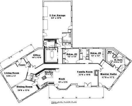
| Description: *Insulated Concrete Forms
*Family Room
*Covered Porch
*Master Suite with Private Bath
*U-shaped Kitchen
|
| Bedrooms : |
3 |
| Baths : |
2.5 |
| Width : |
116' 3" |
| Depth : |
90' 11" |
| Main Ceiling Height: |
10 |
| Other Ceiling Height: |
10 |
| Roof Pitch: |
7 in 12 |
| Secondary Roof Pitch: |
None |
| Floors : |
1 |
| 1st Floor :
|
3779 sq. ft. |
| Total Living :
|
3779 sq. ft. |
| Total Area :
|
4629 sq. ft. |
| Garage Bays: |
2 |
| Garage Type: |
Attached |
Foundation: Slab |
Options: Reproducible / PDF, Right Reading Reverse, Mirror Reading Reverse, Color Rendering, Modifications, CAD Files |
| |

 |
|
|