Plan Number:
 |
SD-7759-162
 |
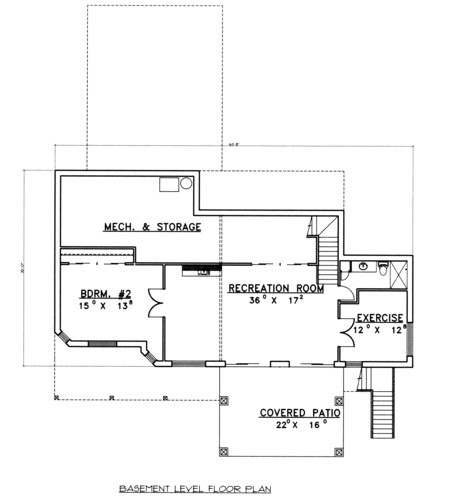
| Description: *Insulated Concrete Form
*Rec. Room
*2-Car Garage
*Vaulted Great Room
|
| Bedrooms : |
2 |
| Baths : |
2.5 |
| Width : |
63' 8" |
| Depth : |
64' 6" |
| Main Ceiling Height: |
9 |
| Other Ceiling Height: |
10 |
| Roof Pitch: |
10 in 12 |
| Secondary Roof Pitch: |
None |
| Floors : |
2 |
| 1st Floor :
|
1976 sq. ft. |
| 2nd Floor :
|
1797 sq. ft. |
| Total Living :
|
3773 sq. ft. |
| Total Area :
|
4826 sq. ft. |
| Garage Bays: |
2 |
| Garage Type: |
Attached |
Foundation: Standard Basement |
Options: Reproducible / PDF, Right Reading Reverse, Mirror Reading Reverse, Color Rendering, Modifications, CAD Files |
| |

 |
|
|