Plan Number:
 |
SD-7755-162
 |
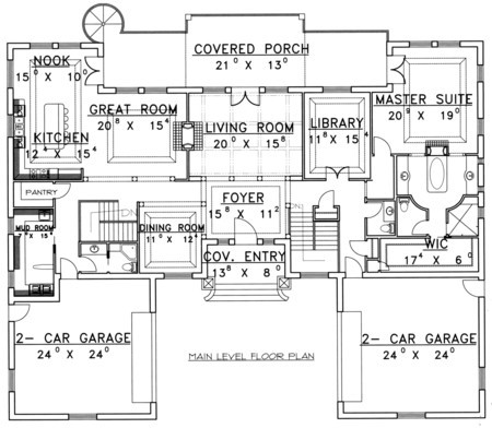
| Description: *Insulated Concrete Form Construction
*French Style Home
*Fireplace In Living Room, Great Room And Family Room
*Laundry Room
*Walk-In Kitchen Pantry
*Eating Bar In Kitchen
*Breakfast Nook
*Library
*Fireplace In Master Suite
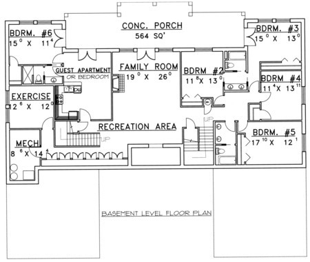
*Exercise Room
*Recreation Room
*Guest Apartment
*Covered Front And Rear Porch
|
| Bedrooms : |
6 |
| Baths : |
5 |
| Width : |
84' 0" |
| Depth : |
67' 0" |
| Main Ceiling Height: |
10 |
| Other Ceiling Height: |
9 |
| Roof Pitch: |
8 in 12 |
| Secondary Roof Pitch: |
10 in 12 |
| Floors : |
2 |
| 1st Floor :
|
3082 sq. ft. |
| Other Room: |
3164 sq. ft. |
| Total Living :
|
6246 sq. ft. |
| Total Area :
|
7510 sq. ft. |
| Garage Bays: |
3 |
| Garage Type: |
Attached |
Foundation: Standard Basement |
Options: Reproducible / PDF, Right Reading Reverse, Mirror Reading Reverse, Color Rendering, Modifications, CAD Files |
| |

 |
|
|