Plan Number:
 |
SD-7748-162
 |
| Description: *Insulated Concrete Form Construction
*Mediterranean Style Home
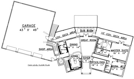
*Laundry Room
*Kitchen Island And Eating Bar
*Office/Den
*Great Room
*Sun Room
*Corner Tub In Master Bathroom
*Deck
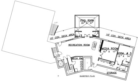
*Media Room
*Wet Bar In Recreation Room
*Storage Area
*Pool Room
*4-Car Garage
*Workshop
*Elevator
|
| Bedrooms : |
3 |
| Baths : |
4.5 |
| Width : |
0' 0" |
| Depth : |
0' 0" |
| Main Ceiling Height: |
10 |
| Other Ceiling Height: |
9 |
| Roof Pitch: |
7 in 12 |
| Secondary Roof Pitch: |
9 in 12 |
| Floors : |
1 |
| 1st Floor :
|
2257 sq. ft. |
| 2nd Floor :
|
202 sq. ft. |
| Other Room: |
502 sq. ft. |
| Total Living :
|
5218 sq. ft. |
| Total Area :
|
7679 sq. ft. |
| Garage Bays: |
3 |
| Garage Type: |
Attached |
Foundation: Standard Basement |
Options: Reproducible / PDF, Right Reading Reverse, Mirror Reading Reverse, Color Rendering, Modifications, CAD Files |
| |

 |
|
|