Plan Number:
 |
SD-7744-162
 |
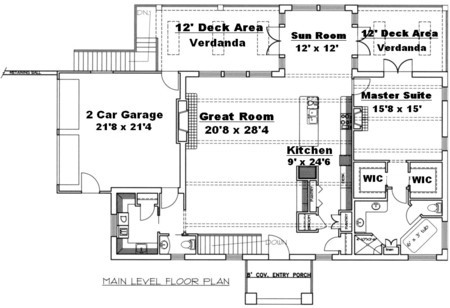
| Description: *Insulated Concrete Form Construction
*Mediterranean Style
*Office
*Shop
*Storage Room
*Covered Porch
*Veranda
*Sun Room
*Fireplace In Master Suite
*Full Master Bathroom With Double Sinks
*Laundry Room
*2-Car Garage
|
| Bedrooms : |
3 |
| Baths : |
2.5 |
| Width : |
69' 8" |
| Depth : |
54' 0" |
| Main Ceiling Height: |
11 |
| Other Ceiling Height: |
11 |
| Roof Pitch: |
7 in 12 |
| Secondary Roof Pitch: |
None |
| Floors : |
1 |
| 1st Floor :
|
1941 sq. ft. |
| Other Room: |
1781 sq. ft. |
| Total Living :
|
3722 sq. ft. |
| Total Area :
|
4674 sq. ft. |
| Garage Bays: |
2 |
| Garage Type: |
Attached |
Foundation: Standard Basement |
Options: Reproducible / PDF, Right Reading Reverse, Mirror Reading Reverse, Color Rendering, Modifications, CAD Files |
| |

 |
|
|