Plan Number:
 |
SD-6704-162
 |
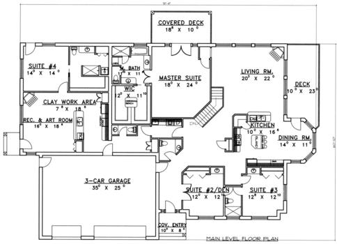
| Description: *Insulated Concrete Form Construction
*Recreation Room
*Kitchen Island And Eating Bar
*Corner Fireplace In Living Room And Art Room
*Large Walk-In Closet With Dressing Bench In Master Suite
*Clay Work Area With Pottery Oven
*Den |
| Bedrooms : |
5 |
| Baths : |
5 |
| Width : |
91' 4" |
| Depth : |
60' 10" |
| Main Ceiling Height: |
9 |
| Other Ceiling Height: |
9 |
| Roof Pitch: |
5 in 12 |
| Secondary Roof Pitch: |
None |
| Floors : |
1 |
| 1st Floor :
|
3751 sq. ft. |
| Other Room: |
2779 sq. ft. |
| Total Living :
|
6550 sq. ft. |
| Total Area :
|
7442 sq. ft. |
| Garage Bays: |
3 |
| Garage Type: |
Attached |
Foundation: Walkout Basement |
Options: Reproducible / PDF, Right Reading Reverse, Mirror Reading Reverse, Color Rendering, Modifications, CAD Files |
| |

 |
|
|