Plan Number:
 |
SD-6612-162
 |
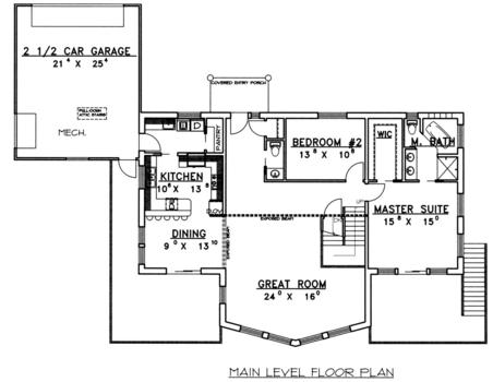
| Description: *Great Room
*Full Master Bathroom With Corner Tub And Walk-In Shower
*Laundry Room
*Walk-In Kitchen Pantry
*2 1/2 Car Garage
*Loft |
| Bedrooms : |
3 |
| Baths : |
2.5 |
| Width : |
77' 8" |
| Depth : |
59' 3" |
| Main Ceiling Height: |
10 |
| Other Ceiling Height: |
10 |
| Roof Pitch: |
10 in 12 |
| Secondary Roof Pitch: |
None |
| Floors : |
2 |
| 1st Floor :
|
1745 sq. ft. |
| 2nd Floor :
|
330 sq. ft. |
| Other Room: |
1745 sq. ft. |
| Total Living :
|
3820 sq. ft. |
| Total Area :
|
4388 sq. ft. |
| Garage Bays: |
2 |
| Garage Type: |
Attached |
Foundation: Daylight basement |
Options: Reproducible / PDF, Right Reading Reverse, Mirror Reading Reverse, Color Rendering, Modifications, CAD Files |
| |

 |
|
|