Plan Number:
 |
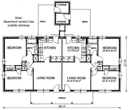
SD-5231-70
 |
| Description: 1 story duplex, 2 bedrooms, 1 bath, LR/dining, outside storage, front porch, back patio |
| Bedrooms : |
2 |
| Baths : |
1 |
| Width : |
59' 4" |
| Depth : |
50' 8" |
| Main Ceiling Height: |
8 |
| Roof Pitch: |
4 in 12 |
| Secondary Roof Pitch: |
10 in 12 |
| Floors : |
1 |
| 1st Floor :
|
811 sq. ft. |
| Total Living :
|
1622 sq. ft. |
| Total Area :
|
1906 sq. ft. |
| Garage Bays: |
0 |
| Garage Type: |
None |
Foundation: Slab, Crawl Space, Basement Additional Charge, Standard Basement |
Options: Right Reading Reverse, Material List, Mirror Reading Reverse, Color Rendering, Modifications |
| |

 |
|
|