Plan Number:
 |
SD-5086-71
 |
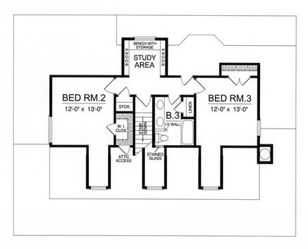
| Description: The cozy wrap around front porch of this beautiful country home invites you to stay awhile. Beautiful front windows allow the outdoors in, and the large open living area brings home the country charm. The island cabinet in the fully functional kitchen brings an open feel to the kitchen and dining room. Mom and Dad can relax downstairs in the spacious master suite, with their luxurious Master Bath, which has double walk in closets and vanities and a Marble Tub. While the kids enjoy two large bedrooms and a Study Area with bookcases upstairs. This is country living at it's finest.
|
| Bedrooms : |
4 |
| Baths : |
3 |
| Width : |
54' 6" |
| Depth : |
41' 10" |
| Main Ceiling Height: |
8 |
| Other Ceiling Height: |
8 |
| Roof Pitch: |
10 in 12 |
| Secondary Roof Pitch: |
10 in 12 |
| Floors : |
2 |
| 1st Floor :
|
1535 sq. ft. |
| 2nd Floor :
|
585 sq. ft. |
| Total Living :
|
2143 sq. ft. |
| Total Area :
|
2292 sq. ft. |
| Garage Bays: |
0 |
| Garage Type: |
None |
Foundation: Slab, Crawl Space, Standard Basement |
Options: Reproducible / PDF, Right Reading Reverse, Modifications, CAD Files |
| |

 |
|
|