Plan Number:
 |
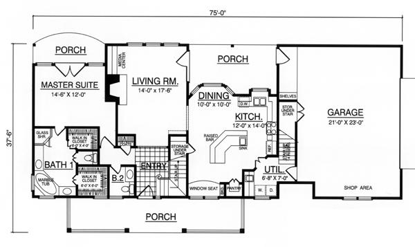
SD-5084-71
 |
| Description: This home defines country charm, from the striking country dormers to the enclosed covered porch. |
| Bedrooms : |
3 |
| Baths : |
2.5 |
| Width : |
75' 0" |
| Depth : |
37' 6" |
| Main Ceiling Height: |
10 |
| Other Ceiling Height: |
8 |
| Roof Pitch: |
10 in 12 |
| Secondary Roof Pitch: |
10 in 12 |
| Floors : |
2 |
| 1st Floor :
|
1326 sq. ft. |
| 2nd Floor :
|
593 sq. ft. |
| Total Living :
|
1919 sq. ft. |
| Total Area :
|
2564 sq. ft. |
| Garage Bays: |
2 |
| Garage Type: |
Attached |
Foundation: Slab, Crawl Space |
Options: Reproducible / PDF, Right Reading Reverse, Modifications, CAD Files |
| |

 |
|
|