Plan Number:
 |
SD-5039-162
 |
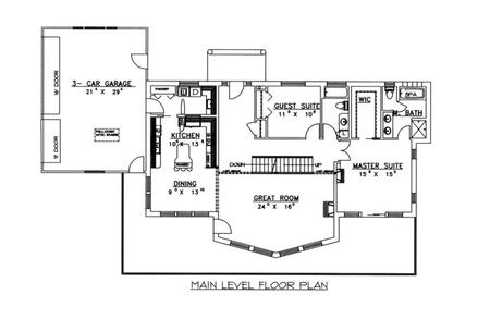
| Description: *Insulated Concrete Form Construction
*Beach/Coastal Style
*3 Car Garage
*Large Walk-In Closet In Master Suite
*Spa Tub
*Den
*Tile Shower
*Covered Entry Porch
*Open Deck Area
*Great Room With Fireplace
*Large Dining Room
*Mechanical Room/Storage
*Recreation Room
|
| Bedrooms : |
4 |
| Baths : |
3 |
| Width : |
80' 8" |
| Depth : |
47' 5" |
| Main Ceiling Height: |
9 |
| Other Ceiling Height: |
9 |
| Roof Pitch: |
10 in 12 |
| Secondary Roof Pitch: |
None |
| Floors : |
2 |
| 1st Floor :
|
1781 sq. ft. |
| 2nd Floor :
|
330 sq. ft. |
| Other Room: |
1781 sq. ft. |
| Total Living :
|
3892 sq. ft. |
| Total Area :
|
4546 sq. ft. |
| Garage Bays: |
3 |
| Garage Type: |
None |
Foundation: Daylight Basement |
Options: Reproducible / PDF, Right Reading Reverse, Mirror Reading Reverse, Color Rendering, Modifications, CAD Files |
| |

 |
|
|