Plan Number:
 |
SD-5028-162
 |
| Description: *Modern Style
*Insulated Concrete Form Construction
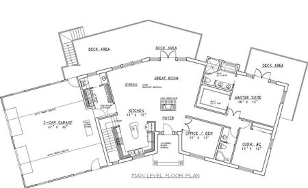
*Great Room
*Fireplace
*Foyer
*Kitchen Island
*Office
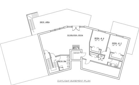
*Recreation Room
*Large Master Suite
*Daylight Basement
*Decks
*Storage
*Two Car Garage
|
| Bedrooms : |
4 |
| Baths : |
3.5 |
| Width : |
94' 2" |
| Depth : |
43' 4" |
| Main Ceiling Height: |
9 |
| Other Ceiling Height: |
9 |
| Roof Pitch: |
7 in 12 |
| Secondary Roof Pitch: |
None |
| Floors : |
1 |
| 1st Floor :
|
1845 sq. ft. |
| Other Room: |
1845 sq. ft. |
| Total Living :
|
1845 sq. ft. |
| Total Area :
|
4973 sq. ft. |
| Garage Bays: |
2 |
| Garage Type: |
Attached |
Foundation: Daylight Basement |
Options: Reproducible / PDF, Right Reading Reverse, Mirror Reading Reverse, Color Rendering, Modifications, CAD Files |
| |

 |
|
|