Plan Number:
 |
SD-4981-162
 |
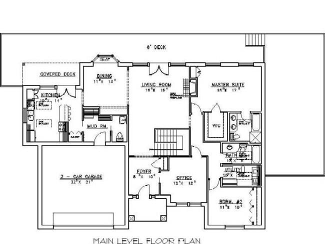
| Description: *Insulated Concrete Form Construction
*Fireplace
*Office
*Large Master Suite
*Mud Room
*Covered Deck
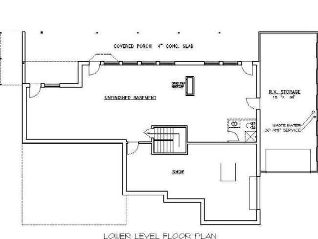
*Basement
*RV Storage
*Shop
*Garage
|
| Bedrooms : |
2 |
| Baths : |
3.5 |
| Width : |
80' 0" |
| Depth : |
56' 0" |
| Main Ceiling Height: |
9 |
| Other Ceiling Height: |
9 |
| Roof Pitch: |
6 in 12 |
| Secondary Roof Pitch: |
None |
| Floors : |
1 |
| 1st Floor :
|
1990 sq. ft. |
| Other Room: |
1312 sq. ft. |
| Total Living :
|
3302 sq. ft. |
| Total Area :
|
5059 sq. ft. |
| Garage Bays: |
2 |
| Garage Type: |
Attached |
Foundation: Daylight Basement |
Options: Reproducible / PDF, Right Reading Reverse, Mirror Reading Reverse, Color Rendering, Modifications, CAD Files |
| |

 |
|
|