Plan Number:
 |
SD-4978-162
 |
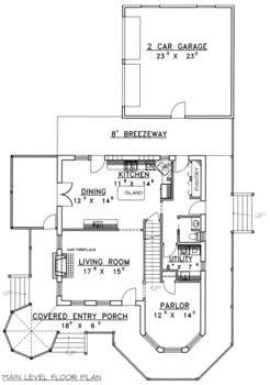
| Description: *Insulated Concrete Form Construction
*Nostalgic Victorian design
*Wrap-around veranda with covered sitting area
*3 bedrooms and sitting room
*Spacious great room area with parlor
*Fully-screened breakfast porch
|
| Bedrooms : |
3 |
| Baths : |
2.5 |
| Width : |
38' 0" |
| Depth : |
74' 0" |
| Main Ceiling Height: |
9 |
| Other Ceiling Height: |
9 |
| Roof Pitch: |
8 in 12 |
| Secondary Roof Pitch: |
None |
| Floors : |
2 |
| 1st Floor :
|
1148 sq. ft. |
| 2nd Floor :
|
1164 sq. ft. |
| Total Living :
|
2312 sq. ft. |
| Total Area :
|
3912 sq. ft. |
| Garage Bays: |
2 |
| Garage Type: |
Attached |
Foundation: Partial Basement |
Options: Reproducible / PDF, Right Reading Reverse, Mirror Reading Reverse, Color Rendering, Modifications, CAD Files |
| |

 |
|
|