Plan Number:
 |
SD-4839-162
 |
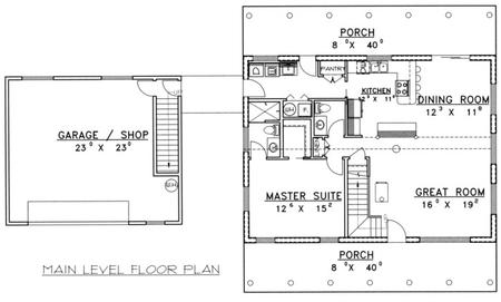
| Description: *Log Home
*Beach/Coastal Style
*Great Room
*Breakfast Bar
*Covered Porches
*Loft
*Mud Room
*Garage/Shop
*Guest Apartment |
| Bedrooms : |
3 |
| Baths : |
2.5 |
| Width : |
78' 1" |
| Depth : |
46' 3" |
| Main Ceiling Height: |
8 |
| Other Ceiling Height: |
9 |
| Roof Pitch: |
10 in 12 |
| Secondary Roof Pitch: |
None |
| Floors : |
2 |
| 1st Floor :
|
1200 sq. ft. |
| 2nd Floor :
|
832 sq. ft. |
| Total Living :
|
3208 sq. ft. |
| Total Area :
|
8808 sq. ft. |
| Garage Bays: |
2 |
| Garage Type: |
Attached |
Foundation: Crawl Space |
Options: Reproducible / PDF, Right Reading Reverse, Mirror Reading Reverse, Color Rendering, Modifications, CAD Files |
| |

 |
|
|