Plan Number:
 |
 |
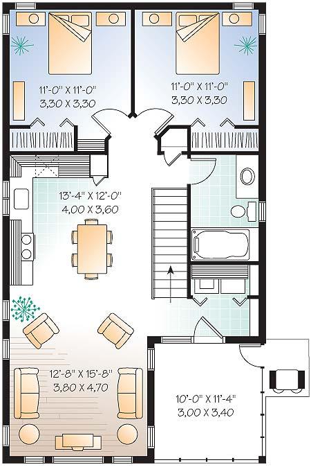
| Description: Main level: Garage, foyer with coat closet, half-bath.
2nd Level: Family room, eat-in kitchen, 2 bedrooms, bathroom, laundry area.
Screened-in balcony on 2nd level, 2 separate garage doors, service door from exterior to garage as well as access to garage from foyer. |
| Width : |
0' 0" |
| Depth : |
0' 0" |
| Main Ceiling Height: |
8 |
| Roof Pitch: |
8 in 12 |
| 1st Floor :
|
192 sq. ft. |
| 2nd Floor :
|
888 sq. ft. |
| Total Usable Space :
|
1080 sq. ft. |
| Total Area :
|
1776 sq. ft. |
| Garage Bays: |
2 |
| Garage Type: |
Parking/Apartment |
Foundation: Slab |
Options: Reproducible / PDF, Right Reading Reverse, Material List, CAD Files |
| |

 |
|
|