Plan Number:
 |
SD-4701-162
 |
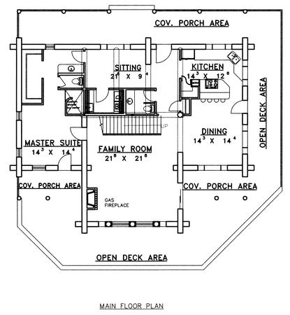
| Description: *Log Home
*Covered Entry Porch
*Open Deck Area
*Large Family Room With Gas Fireplace
*Sitting Room
*Walk-In Closet In Master Suite
*Laundry Room
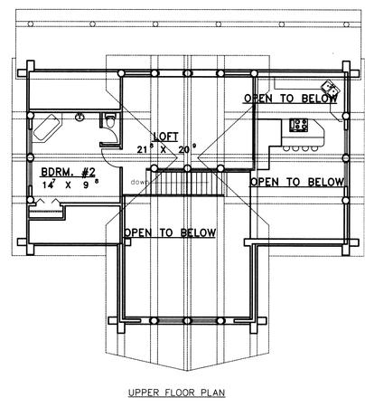
*Loft
*Eating Bar In Kitchen
*Walk-In Pantry |
| Bedrooms : |
2 |
| Baths : |
2 |
| Width : |
62' 8" |
| Depth : |
61' 2" |
| Main Ceiling Height: |
10 |
| Other Ceiling Height: |
13 |
| Roof Pitch: |
12 in 12 |
| Secondary Roof Pitch: |
12 in 12 |
| Floors : |
2 |
| 1st Floor :
|
1852 sq. ft. |
| 2nd Floor :
|
724 sq. ft. |
| Total Living :
|
2576 sq. ft. |
| Total Area :
|
2576 sq. ft. |
| Garage Bays: |
0 |
| Garage Type: |
None |
Foundation: Crawl Space |
Options: Reproducible / PDF, Right Reading Reverse, Mirror Reading Reverse, Color Rendering, Modifications, CAD Files |
| |

 |
|
|