Plan Number:
 |
SD-4410-71
 |
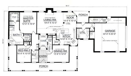
| Description: The classic wrap around porch and abundance of windows makes this home the essence of country living. Large open living room, formal dining room and a gourmet kitchen will make entertaining a snap. Four bedrooms and a large bonus room makes room for any size family.
The classic wrap around porch and abundance of windows makes this home the essence of country living. Large open living room, formal dining room and a gourmet kitchen will make entertaining a snap. Four bedrooms and a large bonus room makes room for any size family.
|
| Bedrooms : |
4 |
| Baths : |
3 |
| Width : |
83' 0" |
| Depth : |
44' 0" |
| Main Ceiling Height: |
10 |
| Roof Pitch: |
10 in 12 |
| Secondary Roof Pitch: |
None |
| Floors : |
2 |
| 1st Floor :
|
1788 sq. ft. |
| 2nd Floor :
|
639 sq. ft. |
| Total Living :
|
2427 sq. ft. |
| Total Area :
|
3130 sq. ft. |
| Garage Bays: |
2 |
| Garage Type: |
Attached |
Foundation: Slab, Crawl Space |
Options: Reproducible / PDF, Right Reading Reverse, Modifications, CAD Files |
| |

 |
|
|