Plan Number:
 |
SD-4395-162
 |
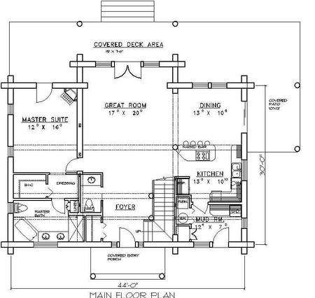
| Description: *Log Home
*Great Room
*Vaulted Ceilings
*Kitchen Island
*Breakfast Bar
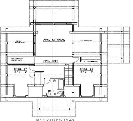
*Large Master Suite
*Loft
*Mud Room |
| Bedrooms : |
3 |
| Baths : |
2.5 |
| Width : |
44' 0" |
| Depth : |
34' 0" |
| Main Ceiling Height: |
9 |
| Roof Pitch: |
12 in 12 |
| Secondary Roof Pitch: |
None |
| Floors : |
2 |
| 1st Floor :
|
1392 sq. ft. |
| 2nd Floor :
|
763 sq. ft. |
| Total Living :
|
2155 sq. ft. |
| Total Area :
|
2155 sq. ft. |
| Garage Bays: |
0 |
| Garage Type: |
None |
Foundation: Crawl Space, Basement Additional Charge |
Options: Reproducible / PDF, Right Reading Reverse, Mirror Reading Reverse, Color Rendering, Modifications, Handicapped Accesable, CAD Files |
| |

 |
|
|