Plan Number:
 |
SD-4388-162
 |
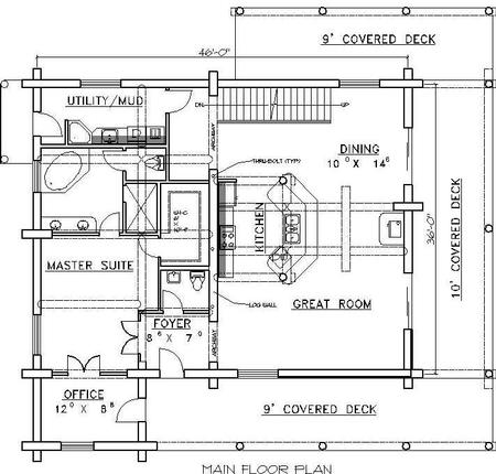
| Description: *Log Home
*Beach/Coastal Style
*Great Room
*Vaulted Ceilings
*Kitchen Island
*Office
*Large Master Suite
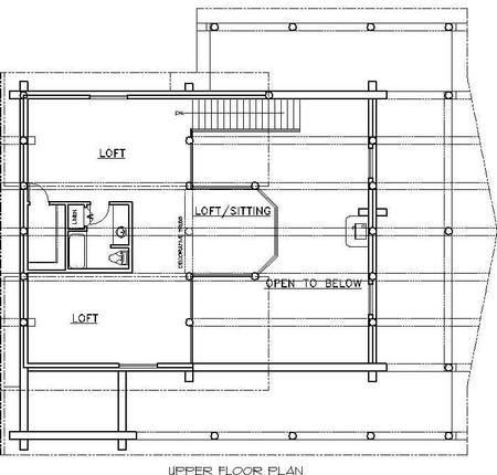
*Loft
*Mud Room
*Basement |
| Bedrooms : |
3 |
| Baths : |
3.5 |
| Width : |
46' 0" |
| Depth : |
36' 0" |
| Main Ceiling Height: |
10 |
| Other Ceiling Height: |
9 |
| Roof Pitch: |
4 in 12 |
| Secondary Roof Pitch: |
12 in 12 |
| Floors : |
2 |
| 1st Floor :
|
1773 sq. ft. |
| 2nd Floor :
|
923 sq. ft. |
| Total Living :
|
2696 sq. ft. |
| Total Area :
|
4530 sq. ft. |
| Garage Bays: |
0 |
| Garage Type: |
None |
Foundation: Slab |
Options: Reproducible / PDF, Right Reading Reverse, Mirror Reading Reverse, Color Rendering, Modifications, CAD Files |
| |

 |
|
|