Plan Number:
 |
SD-4387-162
 |
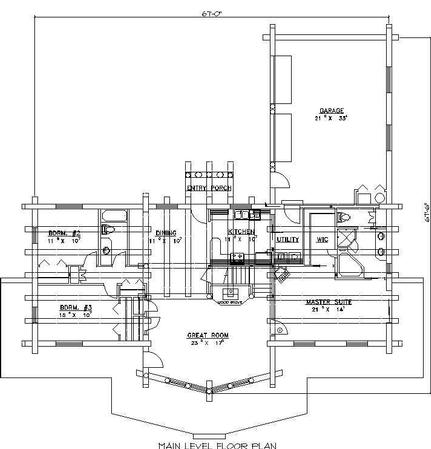
| Description: *Log Home
*Beach/Coastal Style
*Custom View Windows
*Great Room with Cathedral Ceilings
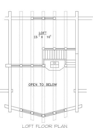
*Loft
*Large Master Suite
*Attached Garage |
| Bedrooms : |
3 |
| Baths : |
2 |
| Width : |
67' 0" |
| Depth : |
67' 0" |
| Main Ceiling Height: |
8 |
| Roof Pitch: |
10 in 12 |
| Secondary Roof Pitch: |
5 in 12 |
| Floors : |
2 |
| 1st Floor :
|
1898 sq. ft. |
| 2nd Floor :
|
215 sq. ft. |
| Total Living :
|
2113 sq. ft. |
| Total Area :
|
2773 sq. ft. |
| Garage Bays: |
2 |
| Garage Type: |
None |
Foundation: Crawl Space, Basement Additional Charge |
Options: Reproducible / PDF, Right Reading Reverse, Mirror Reading Reverse, Color Rendering, Modifications, CAD Files |
| |

 |
|
|