Plan Number:
 |
SD-4347-162
 |
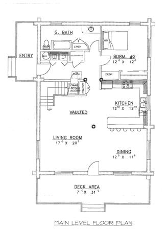
| Description: *Log Home
*Vaulted ceilings
*Roomy master suite
*Large front porch
*Loft
*Balcony
|
| Bedrooms : |
2 |
| Baths : |
2 |
| Width : |
30' 0" |
| Depth : |
40' 0" |
| Main Ceiling Height: |
15 |
| Other Ceiling Height: |
20 |
| Roof Pitch: |
12 in 12 |
| Secondary Roof Pitch: |
4 in 12 |
| Floors : |
2 |
| 1st Floor :
|
1200 sq. ft. |
| 2nd Floor :
|
853 sq. ft. |
| Total Living :
|
2053 sq. ft. |
| Total Area :
|
2053 sq. ft. |
| Garage Bays: |
0 |
| Garage Type: |
None |
Foundation: Crawl Space, Basement Additional Charge |
Options: Reproducible / PDF, Right Reading Reverse, Mirror Reading Reverse, Color Rendering, Modifications, CAD Files |
| |

 |
|
|