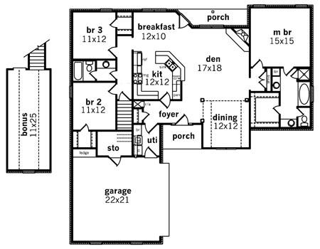
Plan Number:
 |
SD-2547-121
 |
| Description: |
| Bedrooms : |
3 |
| Baths : |
2 |
| Width : |
59' 10" |
| Depth : |
58' 10" |
| Main Ceiling Height: |
9 |
| Other Ceiling Height: |
10 |
| Roof Pitch: |
12 in 12 |
| Secondary Roof Pitch: |
10 in 12 |
| Floors : |
1 |
| 1st Floor :
|
1829 sq. ft. |
| Bonus Room: |
317 sq. ft. |
| Total Living :
|
2146 sq. ft. |
| Total Area :
|
2810 sq. ft. |
| Garage Bays: |
2 |
| Garage Type: |
Attached |
Foundation: Slab, Crawl Space, Basement Additional Charge |
Options: Right Reading Reverse, Mirror Reading Reverse, Color Rendering, Modifications |
| |

 |
|
|