Plan Number:
 |
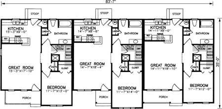
SD-1736-70
 |
| Description: Triplex of ranch-style units with one bedroom, one bath, and private front porches. |
| Bedrooms - Per Unit: |
1 |
| Baths - Per Unit: |
1 |
| Width - Building: |
83' 7" |
| Depth - Building: |
35' 0" |
| Main Ceiling Height: |
8 |
| Roof Pitch: |
7 in 12 |
| Secondary Roof Pitch: |
9 in 12 |
| Floors - Per Unit: |
1 - 1 |
| Floors - Per Building: |
1 |
1st Floor - Per Unit:
841 - 864sq. ft. |
Total Living - Building:
841
sq. ft. |
Total Area - Building:
2809 sq. ft. |
| Garage Bays: |
0 |
| Garage Type: |
None |
Foundation: Slab, Crawl Space, Basement Additional Charge |
Options: Right Reading Reverse, Material List, Color Rendering, Modifications |
| |

 |
|
|