Plan Number:
 |
SD-1723-70
 |
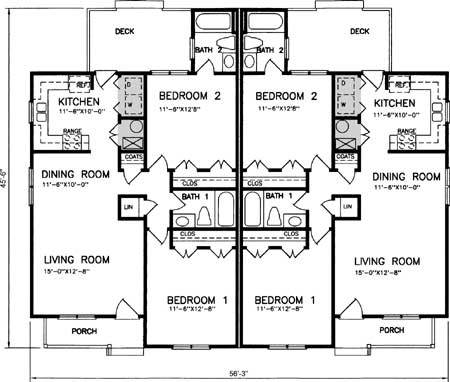
| Description: Two-bedroom, two-bath traditional duplex. |
| Bedrooms - Per Unit: |
2 |
| Baths - Per Unit: |
2 |
| Width - Building: |
56' 3" |
| Depth - Building: |
45' 6" |
| Main Ceiling Height: |
8 |
| Roof Pitch: |
6 in 12 |
| Secondary Roof Pitch: |
12 in 12 |
| Floors - Per Unit: |
1 - 1 |
| Floors - Per Building: |
1 |
1st Floor - Per Unit:
1034 - 1034sq. ft. |
Total Living - Building:
1034
sq. ft. |
Total Area - Building:
2412 sq. ft. |
| Garage Bays: |
0 |
| Garage Type: |
None |
Foundation: Slab, Crawl Space, Basement Additional Charge |
Options: Right Reading Reverse, Material List, Color Rendering, Modifications |
| |

 |
|
|