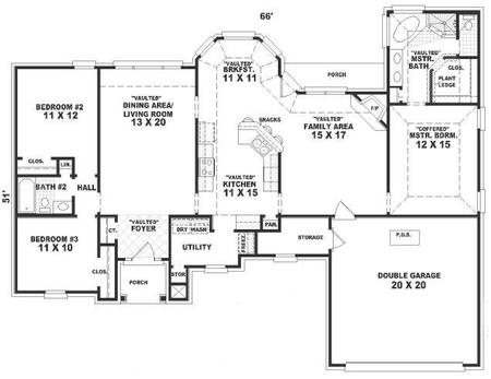
Plan Number:
 |
SD-1477-58
 |
| Description: Split Bedroom Plan, |
| Bedrooms : |
3 |
| Baths : |
2 |
| Width : |
65' 0" |
| Depth : |
50' 0" |
| Main Ceiling Height: |
8 |
| Other Ceiling Height: |
10 |
| Roof Pitch: |
10 in 12 |
| Secondary Roof Pitch: |
12 in 12 |
| Floors : |
1 |
| 1st Floor :
|
1800 sq. ft. |
| Total Living :
|
1800 sq. ft. |
| Total Area :
|
2384 sq. ft. |
| Garage Bays: |
2 |
| Garage Type: |
None |
Foundation: Slab |
Options: Reproducible / PDF, Mirror Reading Reverse, Color Rendering, Modifications |
| |

 |
|
|