Plan Number:
 |
SD-1231-71
 |
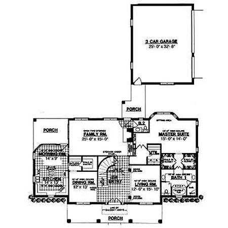
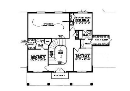
| Description: The breath-taking front of this stunning traditional home will tell you this is something special. A large open entry will lead you into a spacious family room. On either side of the entry you will find a formal dining room and formal living room. The gourmet kitchen opens to a charming morning room. Downstairs you will find a massive master suite, while upstairs there are three additional bedrooms and two baths. This home is perfect for any size family. |
| Bedrooms : |
4 |
| Baths : |
4 |
| Width : |
70' 0" |
| Depth : |
93' 0" |
| Main Ceiling Height: |
10 |
| Roof Pitch: |
8 in 12 |
| Secondary Roof Pitch: |
6 in 12 |
| Floors : |
2 |
| 1st Floor :
|
2313 sq. ft. |
| 2nd Floor :
|
953 sq. ft. |
| Total Living :
|
3266 sq. ft. |
| Total Area :
|
3738 sq. ft. |
| Garage Bays: |
3 |
| Garage Type: |
Attached |
Foundation: Slab, Crawl Space, Basement Additional Charge |
Options: Reproducible / PDF, Right Reading Reverse, Mirror Reading Reverse, Color Rendering, Modifications |
| |

 |
|
|