Plan Number:
 |
SD-1225-71
 |
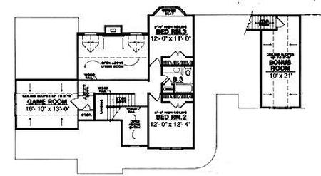
| Description: This spectacular country home will be the envy of the neighborhood. The large living room and gourmet kitchen will make entertaining a breeze. And the children can entertain upstairs in the expansive game room. This home features three bedrooms and a study, which can be an optional fourth bedroom.
An additional bonus room will allow growth for years to come. |
| Bedrooms : |
3 |
| Baths : |
3 |
| Width : |
85' 0" |
| Depth : |
46' 0" |
| Main Ceiling Height: |
10 |
| Roof Pitch: |
10 in 12 |
| Secondary Roof Pitch: |
4 in 12 |
| Floors : |
2 |
| 1st Floor :
|
1850 sq. ft. |
| 2nd Floor :
|
854 sq. ft. |
| Total Living :
|
2704 sq. ft. |
| Total Area :
|
2935 sq. ft. |
| Garage Bays: |
2 |
| Garage Type: |
Attached |
Foundation: Slab, Crawl Space, Basement Additional Charge |
Options: Reproducible / PDF, Right Reading Reverse, Mirror Reading Reverse, Color Rendering, Modifications, CAD Files |
| |

 |
|
|