Plan Number:
 |
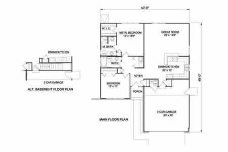
SD-1124-61
 |
| Description: Features two bedrooms and two full baths
Great Room style Living area with optional fireplace
U-shaped Kitchen with snack bar
Laundry conveniently located in bedroom area
Master Bedroom with walk-in closet and private Bath. Plan includes optional Active Solar Details. |
| Bedrooms : |
2 |
| Baths : |
2 |
| Width : |
40' 0" |
| Depth : |
49' 0" |
| Main Ceiling Height: |
8 |
| Roof Pitch: |
6 in 12 |
| Secondary Roof Pitch: |
None |
| Floors : |
1 |
| 1st Floor :
|
1162 sq. ft. |
| Total Living :
|
1162 sq. ft. |
| Total Area :
|
1960 sq. ft. |
| Garage Bays: |
2 |
| Garage Type: |
Attached |
Foundation: Slab, Crawl Space, Standard Basement |
Options: Reproducible / PDF, Right Reading Reverse, Modifications |
| |

 |
|
|